Заполните форму
И получите звонок от нашего архитектора
Реконструкция существующего дома
Село Веселое — один из населенных пунктов, отстроенный специально для олимпийских переселенцев. Ровно нарезанные квадраты участков, домики, как под копирку — уже сложившееся лицо района.
Счастливыми обладателями одного из таких одноэтажных
домиков в 100 кв.м. стала семья с тремя детьми.
Но как же им хотелось создать своё родовое поместье, в котором всё будет пропитано нотками прованса, будет тепло и уютно, а конёк главного фасада будет венчать фамильный герб.
И конечно же, совсем не хотелось разрушать сложившийся архитектурный рельеф квартала,
его гармоничное европейское лицо.
Конечно же, семье из пяти человек сложно разместиться в таком небольшом доме,
поэтому было принято решение надстройки второго этажа.
Дизайну фасада уделялось огромное внимание, нужно вписать новый дом в сложившуюся застройку,
при этом сделав его особенным и таким родным.
Заказчик вдохновлялся мотивами современной классики и средиземноморского стиля: где теплые цвета, натуральный камень, дерево, сочетаются с классической лепниной и контрастной черепицей.
Реконструкция существующего дома
Село Веселое — один из населенных пунктов, отстроенный специально для олимпийских переселенцев. Ровно нарезанные квадраты участков, домики, как под копирку — уже сложившееся лицо района.
Счастливыми обладателями одного из таких одноэтажных домиков в 100 кв.м. стала семья с тремя детьми.
Но как же им хотелось создать своё родовое поместье, в котором всё будет пропитано нотками прованса, будет тепло и уютно, а конёк главного фасада будет венчать фамильный герб.
И конечно же, совсем не хотелось разрушать сложившийся архитектурный рельеф квартала, его гармоничное европейское лицо.
Конечно же, семье из пяти человек сложно разместиться в таком небольшом доме, поэтому было принято решение надстройки второго этажа.
Дизайну фасада уделялось огромное внимание, нужно вписать новый дом в сложившуюся застройку, при этом сделав его особенным и таким родным.
Заказчик вдохновлялся мотивами современной классики и средиземноморского стиля: где теплые цвета, натуральный камень, дерево, сочетаются с классической лепниной и контрастной черепицей.
Сроки реализации проекта стояли достаточно короткие, нужно было действовать четко,
стараясь по максимуму сохранить сложившуюся базу.
Поэтому, одним из наиболее важных критериев конфигурации будущих планировок были существующие стены,
несущие конструкции, проведенные коммуникации.
Мы проработали варианты планировок с учетом пожеланий,
состава семьи, особенностей всех членов семьи.
Важно было правильно расположить лестницу на второй этаж, в достаточно стесненных условиях,
чтобы она была удобна даже для самых маленьких членов семьи.
Сроки реализации проекты стояли достаточно короткие, нужно было действовать четко, стараясь по максимуму сохранить сложившуюся базу.
Поэтому одним из наиболее важных критериев конфигурации будущих планировок были существующие стены, несущие конструкции, проведенные коммуникации.
Мы проработали варианты планировок с учетом пожеланий, состава семьи, особенностей всех членов семьи.
Важно было правильно расположить лестницу на второй этаж в достаточно стесненных условиях, чтобы она была удобна даже для самых маленьких членов семьи.
Следующий шаг — архитектурное решение дома.
Стояло много вопросов: выбор материалов, декор фасада, цвета материалов, необходимость сохранения оконных проемов, оконных рам, дверей, ограждающие конструкции балкона второго этажа, сочетании дизайна интерьера и внешнего облика, функциональное назначение площадок вокруг дома, особенности их использования
Мы до мелочей продумывали все элементы декора — каждую ступеньку на фасаде,
лепнину, толщину откосов.
Очень важным было определить размеры окон, высоту их расположения относительно земли и друг
друга, раскладку, цвет рам.
Так же мы проработали ограждения крыльца и балкона — в качестве материала выбрано дерево,
мы вписали его в общую архитектурную концепцию, разработали раскладку, детали.
И самое интересное: Создание внешнего облика дома и участка…
Следующий шаг - архитектурное решение дома.
Стояло много вопросов: выбор материалов, декор фасада, цвета материалов, необходимость сохранения оконных проемов, оконных рам, дверей, ограждающие конструкции балкона второго этажа, сочетании дизайна интерьера и внешнего облика, функциональное назначение площадок вокруг дома, особенности их использования
Мы до мелочей продумывали все элементы декора - каждую ступеньку на фасаде, лепнину, толщину откосов.
Очень важным было определить размеры окон, высоту их расположения относительно земли и друг друга, раскладку, цвет рам.
Так же мы проработали ограждения крыльца и балкона - в качестве материала выбрано дерево, мы вписали его в общую архитектурную концепцию, разработали раскладку, детали.
И самое интересное: Создание внешнего облика дома и участка…
Архитектура Средиземноморья впитала в себя традиции и особенности большого количества стран: Италии, Греции, Испании, Турции, Лазурного Берега Франции, Марокко и других. Средиземноморский стиль достаточно легко распознать по некоторым чертам, которые сформировались под влиянием климата. Это относится к цветовой гамме,
используемым материалам и самой планировке зданий.
Стены обычно отделывают белой, бежевой или терракотовой штукатуркой, которая отражает солнечные лучи.
Крышу покрывают коричневой, красной или оранжевой черепицей, что очень гармонично смотрится,
в сочетании со светлыми стенами.
Во внутренней и внешней отделке предпочтение отдается натуральным материалам, таким как дерево, керамика, природный камень. Прохладу помогут сохранить каменные полы и стены.
Архитектура Средиземноморья впитала в себя традиции и особенности большого количества стран: Италии, Греции, Испании, Турции, Лазурного Берега Франции, Марокко и других. Средиземноморский стиль достаточно легко распознать по некоторым чертам, которые сформировались под влиянием климата. Это относится к цветовой гамме, используемым материалам и самой планировке зданий.
Стены обычно отделывают белой, бежевой или терракотовой штукатуркой, которая отражает солнечные лучи. Крышу покрывают коричневой, красной или оранжевой черепицей, что очень гармонично смотрится в сочетании со светлыми стенами.
Во внутренней и внешней отделке предпочтение отдается натуральным материалам, таким как дерево, керамика, природный камень. Прохладу помогут сохранить каменные полы и стены.
Мы создали семейную усадьбу для супругов с тремя детьми, на территории которой разместился двухэтажный дом, беседка площадью 20 м², выполненная с использованием тех же элементов декора, что и дом, и хозяйственный блок с котельной.
Классические элементы фасада - лепнина, карнизы, декоративные наличники, облегчают общий объем дома, делают его более воздушным и изысканным.
Сложный рельеф фасада разнообразит простоту архитектуры, этого же позволяют добиться нюансы цвета в декоре.
Ограждение участка и тротуарную плитку мы сохранили, они удачно вписались в общую цветовую и стилистическую концепцию дома.
При въезде на территорию было предусмотрено парковочное место для хозяина и хозяйки дома.
По периметру участка были высажены туи, которые как нельзя лучше подходят к выбранному стилю, диаметр кроны и компактная корневая система позволяют высаживать их даже на узких участках земли, а высота защищает от посторонних взглядов.
А в глубине - просторная беседка.
Мы создали семейную усадьбу для супругов с тремя детьми, на территории которой разместился двухэтажный дом, беседка площадью 20 м², выполненная с использованием тех же элементов декора, что и дом, и хозяйственный блок с котельной.
Классические элементы фасада - лепнина, карнизы, декоративные наличники, облегчают общий объем дома, делают его более воздушным и изысканным.
Сложный рельеф фасада разнообразит простоту архитектуры, этого же позволяют добиться нюансы цвета в декоре.
Ограждение участка и тротуарную плитку мы сохранили, они удачно вписались в общую цветовую и стилистическую концепцию дома.
При въезде на территорию было предусмотрено парковочное место для хозяина и хозяйки дома.
По периметру участка были высажены туи, которые как нельзя лучше подходят к выбранному стилю, диаметр кроны и компактная корневая система позволяют высаживать их даже на узких участках земли, а высота защищает от посторонних взглядов.
А в глубине - просторная беседка.
Сочи - это город, который славится своей прекрасной теплой погодой на протяжении всего года!
Поэтому очень важно, чтобы рядом с домом было место, где можно укрыться от летнего солнца, порадоваться осеннему дождику в кругу семьи или собраться большой компанией за просторным столом, с барбекю и песнями под гитару.
Вот и рядом с семейной усадьбой появилась беседка площадью 20 кв.м. Ее очертания повторяют стилистические мотивы фасада основного дома, белый цвет добавляет лаконичности и легкости. А контрастная темная крыша создает ощущение стабильности и защищенности, что так важно маленьким детям.
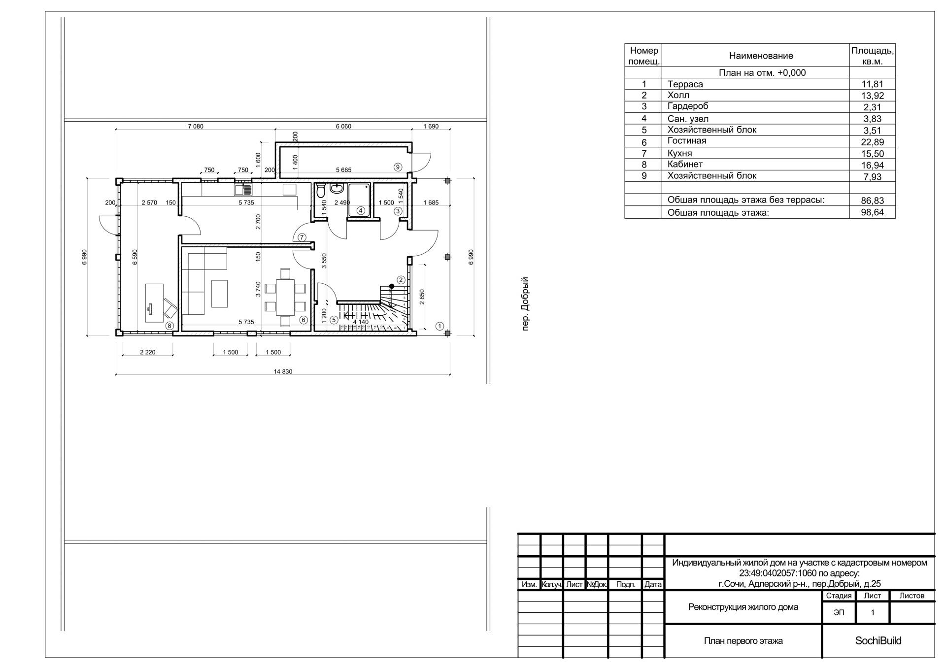
При входе в дом, со стороны главного фасада, мы попадаем в просторный холл. Тут же находятся гардероб, гостевой санузел, техническое помещение и лестница на второй этаж.
Из холла вход в гостиную, где вся семья соберется вечером. Дети делают уроки за большим столом, а родители расположившись на мягком диване, читают книги или болтают о том, как прошел день.
Вторая дверь из холла - в кухню, а из нее мы попадаем в папино убежище - личный кабинет, где можно в уединении работать, отдохнуть после насыщенного рабочего дня. Тут же разместилась небольшая гардеробная! И выход на улицу с противоположной стороны дома, прямо к беседке.
С крыльца так же есть отдельный вход в хозяйственный блок, а за домом - площадка под навесом, для хранения велосипедов.
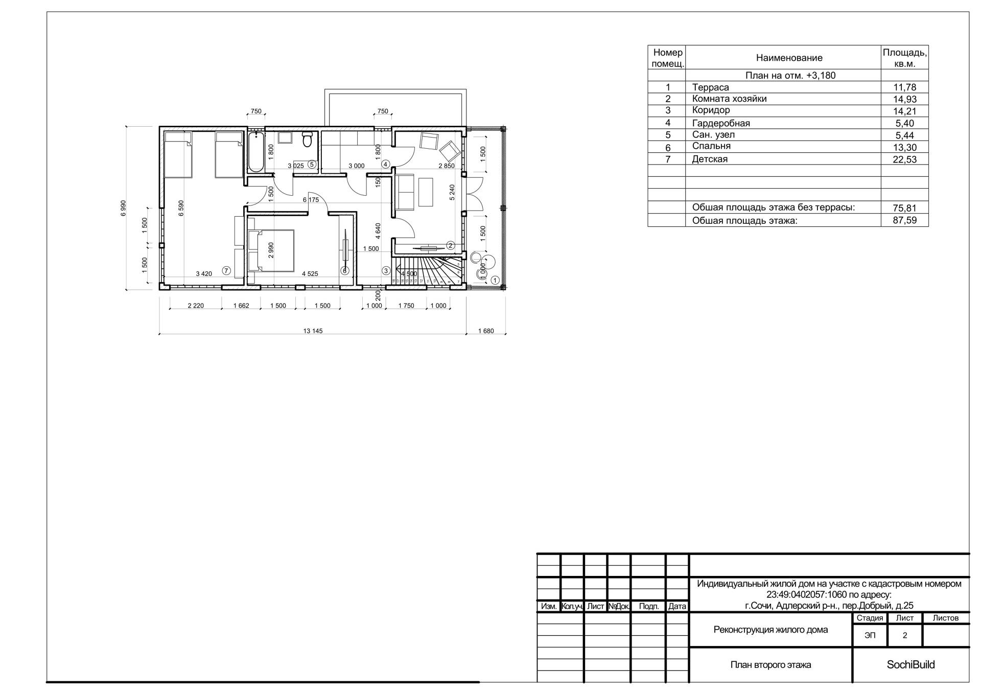
По лестнице мы попадаем на второй этаж. Тут личная комната хозяйки, свой уголок, в котором можно заниматься любимым делом, болтать с подругами, проводить вечера, укутавшись в плед с любимой книгой и чашечкой какао, с выходом на просторный балкон, где мы создали уютный островок с парой кресел и столиком. Из нее так же можно попасть в гардеробную, с отдельным выходом в коридор второго этажа.
Пройдя дальше по коридору, мы попадем в спальню родителей и детскую. В обеих комнатах - большие окна, которые наполняют их светом и теплом, создают уют и открывают портал в новый, неизведанный мир.
Так же на втором этаже находится просторный санузел с небольшими окнами.
Материалы отделки дома пропитаны нотками прованса и современной классики. Они дарят ощущение тепла летнего воздуха, создают атмосферу европейского Средиземноморья, когда в воздухе витает запах моря и апельсинов.
В отделке дома использовался терракотовый рельефный облицовочный кирпич под старину, фасадная штукатурка с имитацией травертина и белого камня.
Кровля - гибкая черепица Технониколь, цвет «Ниагара».
Сочи - это город, который славится своей прекрасной теплой погодой на протяжении всего года!
Поэтому очень важно, чтобы рядом с домом было место, где можно укрыться от летнего солнца, порадоваться осеннему дождику в кругу семьи или собраться большой компанией за просторным столом, с барбекю и песнями под гитару.
Вот и рядом с семейной уссадьбой появилась беседка площадью 20 кв.м. Ее очертания повторяют стиллистические мотивы фасада основного дома, белый цвет добавляет лаконичности и легкости. А контрастная темная крыша создает ощущение стабильности и защещенности, что так важно маленьким детям.
При входе в дом со стороны главного фасада мы попадаем в просторный холл. Тут же находятся гардероб, гостевой санузел, техническое помещение и лестница на второй этаж.
Из холла вход в гостиную, где вся семья соберется вечером. Дети делают уроки за большим столом, а родители расположившись на мягком диване читают книги или болтают о том, как прошел день.
Вторая дверь из холла - в кухню,а из нее мы попадаем в папино убежище - личный кабинет, где можно в уединении работать, отдыхать после насыщенного рабочего дня. Тут же разместилась небольшая гардеробная! И выход на улицу с противоположной стороны дома, прямо к беседке.
С крыльца так же есть отдельный вход в хозяйственный блок, а за домом - площадка под навесом, для хранения велосипедов.
По лестнице мы попадаем на второй этаж. Тут личная комната хозяйки, свой уголок, в котором можно заниматься любимым делом, болтать с подругами, проводить вечера, укутавшись в плед с любимой книгой и чашечкой какао, с выходом на просторный балкон, где мы создали уютный островок с парой кресел и столиком. Из нее так же можно попасть в гардеробную, с отдельным выходом в коридор второго этажа.
Пройдя дальше по коридору мы попадем в спальню родителей и детскую. В обеих комнатах - большие окна, которые наполняют их светом и теплом, создают уют и открывают портал в новый, неизведанный мир.
Так же на втором этаже находится просторный санузел с небольшими окнами.
Материалы отделки дома пропитаны нотками прованса и современной классики. Они дарят ощущение тепла летнего воздуха, создают атмосферу европейского Средиземноморья, когда в воздухе витает запах моря и апельсинов.
В отделке дома использовался терракотовый рельефный облицовочный кирпич под старину, фасадная штукатурка с имитацией травертина и белого камня.
Кровля - гибкая черепица Технониколь, цвет «Ниагара».
Так мы создали островок тепла и безмятежности, по своему особенный,
при этом отлично вписанный в окружающую застройку.
Это то место, куда хочется возвращаться после трудового дня, собираться всей семьей, зажигать свечи
и радоваться миру и покою.
Тут для каждого члена семьи есть свой маленький особенный уголок, в котором, погружаясь в свои грёзы, можно создавать идеальное будущее, творить, набираться сил и мечтать о великом.
Самое чудесное место ежедневного счастья!
Так мы создали островок тепла и безмятежности, по своему особенный, при этом отлично вписанный в окружающую застройку.
Это то место, куда хочется возвращаться после трудового дня, собираться всей семьей, зажигать свечи и радоваться миру и покою.
Тут для каждого члена семьи есть свой маленький особенный уголок, в котором, погружаясь в свои грёзы, можно создавать идеальное будущее, творить, набираться сил и мечтать о великом.
Самое чудесное место ежедневного счастья!
Заполните форму
И получите звонок от нашего главного архитектора

Оставляете заявку на сайте или звоните
Выезжаем на участок, консультируем, делаем замеры
Создаём концепцию будущего здания, обсуждаем детали
Создаем эскизный проект вашего дома
Создаём рабочие чертежи
Создаем архитектурный проект
Рассчитываем смету
Помогаем строить дом, не выходя за рамки сметы
Ждем Вас ежедневно, с 09:00 до 20:00
Наши телефоны:
8 (800) 200-56-88 (звонок бесплатный)
Почта: info@sochibuild.pro
Адрес: Сочи, ул. Несебрская, 6 Бизнес центр «Европейский»
ПОЛИТИКА КОНФИДЕНЦИАЛЬНОСТИ
1. Какая информация подлежит сбору:
Сбору подлежат только сведения, обеспечивающие возможность поддержки обратной связи с пользователем.
Некоторые действия пользователей автоматически сохраняются в журналах сервера:
– IP-адрес;
– данные о типе браузера, надстройках, времени запроса и т. д.
2. Как используется полученная информация:
Сведения, предоставленные пользователем, используются для связи с ним, в том числе для направления уведомлений об изменении статуса заявки.
3. Управление личными данными:
Личные данные доступны для просмотра, изменения и удаления в личном кабинете пользователя.
В целях предотвращения случайного удаления или повреждения данных информация хранится в резервных копиях в течение 7 дней и может быть восстановлена по запросу пользователя.
4. Предоставление данных третьим лицам:
Личные данные пользователей могут быть переданы лицам, не связанным с настоящим сайтом, если это необходимо:
– для соблюдения закона, нормативно-правового акта, исполнения решения суда;
– для выявления или воспрепятствования мошенничеству;
– для устранения технических неисправностей в работе сайта;
– для предоставления информации на основании запроса уполномоченных государственных органов.
5. Безопасность данных:
Администрация сайта принимает все меры для защиты данных пользователей от несанкционированного доступа, в частности:
– регулярное обновление служб и систем управления сайтом и его содержимым;
– шифровка архивных копий ресурса;
– регулярные проверки на предмет наличия вредоносных кодов;
– использование для размещения сайта виртуального выделенного сервера.
7. Изменения:
Обновления политики конфиденциальности публикуются на данной странице. Для удобства пользователей все версии политики конфиденциальности подлежат сохранению в архивных файлах.
Данный сайт использует Cookie
Редактируемый текст